
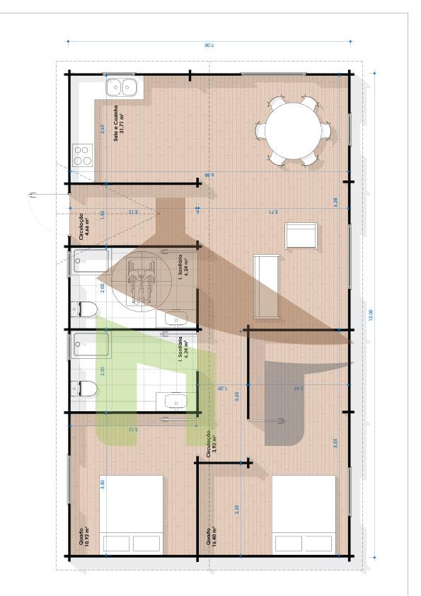
A Casa de madeira modelo Solina é um T2 com 2 casas de banho, e muito espaço. Com 84 m2 e telhado composto, apresenta-se como um modelo muito interessante para quem procura um T2 grande.
Você pode escolher entre diferentes espessuras de madeira na parede simples interior de madeira maciça (45, 58, 70, 94, 140 e 180mm) que soma ao kit de isolamento com 122mm no exterior
Solina T2: Um Refúgio Acolhedor em Madeira
— Casa de madeira maciça – Pinho nórdico Certificado, Janelas de madeira com vidro duplo e portadas, portas interior e exterior de madeira, caleiras e algeroz, telhado com isolamento contra humidade, térmico e acústico de 3 camadas com manta em lã de rocha – Revestido com Isolamento em chapa de aço galvanizada imitação de telha.
OPCIONAL PREÇO À PARTE KIT DE ISOLAMENTO A Chamada Parede Dupla com isolamento em poliestireno extrudido de paredes e chão. (O telhado está em todas as opções sempre isolado com 3 camadas)
OPÇÃO 1
Casa completa instalada no terreno sem equipamentos
— Área aproximada: 84m2
O que está incluído no preço
— Base da casa em blocos de betão
— Montagem da casa
— Entrega entre 8-10 semanas
— Instalamos em todo o Portugal continental
— Transporte Gratuito até ao local de montagem
OPÇÃO 2 CHAVE NA MÃO
Casa completa instalada no terreno com equipamentos
— Área aproximada: 84m2
O que está Incluído no preço
— Base da casa em blocos de betão
— Montagem da casa
— Entrega entre 8-10 semanas
— Instalamos em todo o Portugal continental
— Transporte Gratuito até ao local de montagem
Equipamentos incluídos
— Pré-instalação de água fria, quente e de esgoto para casa de banho.
— Montagem e ligação de Termoacumulador (Aparelho incluído).
— Montagem e instalação cabine de duche, sanita e kit de lavatório (cabine de duche, sanita e kit de lavatório incluído).
— Pré-instalação de água fria, quente e de esgoto para cozinha e máquinas.
— Pré-instalação de eletricidade; Quadro de 18 módulos caixa saliente com tampa, diferencial 2P 40A, monofásico. Com número máximo de 32 unidades de tomadas, interruptores e apliques. Apliques não incluídos. Tomadas, interruptores de EFAPEL tipo Logus 90 em branco, calhas em branco, Cabos FVV 3G1.5; RVK 3G4; FVV3G2.5
OPCIONAL INCLUÍDO NO PREÇO Instalações elétricas no interior das paredes. Feito já de fábrica. Só possivel a partir da espessura de paredes de 58 mm ou maior
OPCIONAL PREÇO À PARTE LICENCIAMENTO – (Arquitecto)
A casa de madeira modelo Solina T2 com 84m² da MF Casas de Madeira é a materialização do sonho de um lar acolhedor, prático e sustentável. Com seus 84m² de área útil distribuídos em um único piso, a Solina T2 oferece um ambiente familiar versátil, ideal para casais ou famílias pequenas que apreciam o conforto, a amplitude e a beleza natural da madeira.
O kit de isolamento da casa inclui telas de isolamento, 100mm de EPS no interior e revestimento de madeira pinho nórdico certificado, proporcionando um ambiente térmico e acústico ideal para o seu lar.
Design Moderno e Convidativo:
A Solina T2 apresenta um design moderno e convidativo, com linhas retas e cores neutras que transmitem paz e serenidade. A ampla sala de estar e jantar em open space é perfeita para reunir a família e amigos.
Qualidade e Sustentabilidade Inigualáveis:
A MF Casas de Madeira prima pela qualidade e sustentabilidade em todas as suas construções, e a Solina T2 não é exceção. A casa é construída com madeira maciça de pinho nórdico certificado, um material de alta resistência e durabilidade, proveniente de florestas geridas de forma responsável. O isolamento térmico e acústico de 3 camadas com manta em lã de rocha do telhado garante um ambiente confortável e silencioso durante todo o ano, contribuindo para a eficiência energética da casa.
Eficiência Energética e Economia:
A Solina T2 foi concebida para ser energeticamente eficiente. A espessura da madeira de 70mm, aliada ao isolamento térmico de 3 camadas , garante que a casa se mantenha fresca no verão e quente no inverno, reduzindo significativamente o consumo de energia e, consequentemente, as suas faturas de energia.
Personalização e Adaptabilidade:
A MF Casas de Madeira oferece a possibilidade de personalizar a casa Solina T2 de acordo com as suas necessidades e orçamento. Você pode escolher entre diferentes acabamentos e extras, como painéis solares, para criar um lar único que reflita o seu estilo pessoal.
Ideal para:
- Casais ou famílias pequenas
- Quem procura um lar moderno e prático
- Investidores que pretendem alugar um imóvel de alto padrão
Vantagens da Solina T2:
- Espaço e amplitude: A casa oferece um amplo espaço interno, ideal para casais ou famílias pequenas. A distribuição dos ambientes é funcional e otimizada, proporcionando um dia a dia mais prático.
- Conforto e qualidade de vida: A construção em madeira maciça de pinho nórdico certificado garante alta resistência e durabilidade à casa. O isolamento térmico e acústico de 3 camadas proporciona um ambiente confortável e silencioso durante todo o ano.
- Eficiência energética e economia: A espessura da madeira de 70mm, aliada ao isolamento térmico de 3 camadas, garante que a casa se mantenha fresca no verão e quente no inverno, reduzindo significativamente o consumo de energia.
- Sustentabilidade: A madeira utilizada na construção da casa é proveniente de florestas geridas de forma responsável.
Se tem um projeto em mente, ou apenas a ideia de fazer uma casa de madeira, não deixe de consultar-nos para que a nossa equipa possa demonstrar-lhe todas as vantagens e benefícios do nosso sistema construtivo.
A vasta experiência e “know-how” adquiridos com o passar dos anos, tanto a nível nacional como internacional, permite-nos encarar qualquer tipo de projecto.
Pode colocar a sua casa de madeira sob uma laje de betão, ou outro tipo de fundação. (por conta do cliente) Isto acontece por uma questão de gosto pessoal ou por necessidade, em casos de terrenos instáveis, inclinados ou em casos de exigência técnica no licenciamento.
É possível personalizar a casa, desde alterações ao tamanho e forma bem como a localização de janelas, portas ou sacadas, pode também aumentar a área útil ou usar como ponto de partida para um modelo completamente seu. À sua medida.
A espessura das paredes, pode variar entre 45 mm, 58 mm, 70 mm, 94mm ou 180 mm em parede simples e é definida, em função do tamanho e complexidade de cada modelo.
No entanto, se desejar, pode optar e solicitar uma espessura superior à que foi apresentada na sua casa. E/ou optar por colocar parede dupla com isolamento sendo que a espessura total das paredes irá subir exponencialmente. O nosso kit de isolamento (sujeito a revisão orçamental) que é composto por espessura extra de madeira maçica aplicado do lado de fora da casa com 10 cm de caixa de ar com isolamento no interior (poliestireno extrudido de paredes e chão e tela isolante). Excelente comportamento térmico, acústico e estrutural, bem como uma grande robustez resultante do sistema construtivo.
Prolongue a sua casa para o exterior, acrescente área de alpendre e de deck se assim o desejar. (sujeito a revisão orçamental)
Características:
Tipo de madeira estrutura/paredes – Pinho Nórdico maciço certificado
WC equipado, instalação eléctrica e rede de águas quente e fria e esgotos em toda a casa, pronta a utilizar.
Elevação do solo apenas 40cm.
O processo construtivo é baseado no encaixe “macho-fêmea” para construção das paredes duplas ou simples. Neste procedimento temos um encaixe perfeito entre as peças o que permite a completa vedação das paredes proporcionando maior conforto e segurança.