A Casa de Madeira Simona T2 é uma confortável pequena casa, a um preço reduzido. Prática para férias ou habitação própria permanente. Um modelo bastante usado para turismo devido a sua rentabilidade. E Retorno do investimento
Você pode escolher entre diferentes espessuras de madeira na parede simples interior de madeira maciça (45, 58, 70, 94, 140 e 180mm) que soma ao kit de isolamento com 122mm no exterior
A Simona da MF Casas de Madeira: Um Sonho Moderno em Madeira
— Casa de madeira maciça – Pinho nórdico Certificado, Janelas de madeira com vidro duplo e portadas, portas interior e exterior de madeira, caleiras e algeroz, telhado com isolamento contra humidade, térmico e acústico de 3 camadas com manta em lã de rocha – Revestido com Isolamento em chapa de aço galvanizada imitação de telha.
OPCIONAL PREÇO À PARTE KIT DE ISOLAMENTO COM ESPESSURA DE 122mm A Chamada Parede Dupla com isolamento em poliestireno extrudido de paredes e chão. (O telhado está em todas as opções sempre isolado com 3 camadas)
OPÇÃO 1
Casa completa instalada no terreno sem equipamentos
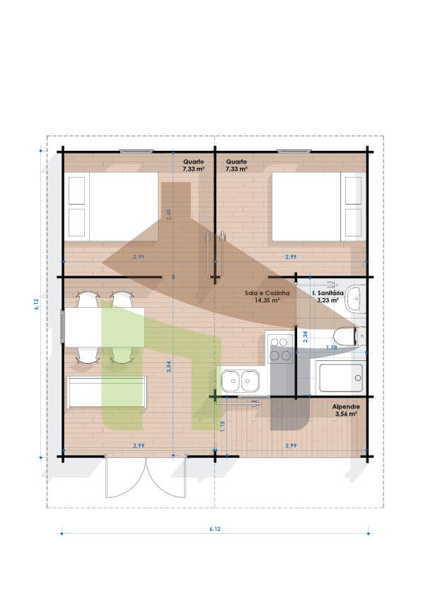
— Área aproximada: 38m2
O que está incluído no preço
— Base da casa em blocos de betão
— Montagem da casa
— Entrega entre 8-10 semanas
— Instalamos em todo o Portugal continental
— Transporte Gratuito até ao local de montagem
OPÇÃO 2 CHAVE NA MÃO
Casa completa instalada no terreno com equipamentos
— Área aproximada: 38m2
O que está Incluído no preço
— Base da casa em blocos de betão
— Montagem da casa
— Entrega entre 8-10 semanas
— Instalamos em todo o Portugal continental
— Transporte Gratuito até ao local de montagem
Equipamentos Incluídos
— Pré-instalação de água fria, quente e de esgoto para casa de banho.
— Montagem e ligação de Termoacumulador (Aparelho incluído).
— Montagem e instalação cabine de duche, sanita e kit de lavatório (cabine de duche, sanita e kit de lavatório incluído).
— Pré-instalação de água fria, quente e de esgoto para cozinha e máquinas.
— Pré-instalação de eletricidade; Quadro de 18 módulos caixa saliente com tampa, diferencial 2P 40A, monofásico. Com número máximo de 24 unidades de tomadas, interruptores e apliques. Apliques não incluídos. Tomadas, interruptores de EFAPEL tipo Logus 90 em branco, calhas em branco, Cabos FVV 3G1.5; RVK 3G4; FVV3G2.5
OPCIONAL INCLUÍDO NO PREÇO Instalação elétrica no interior das paredes. Feito já de fábrica. Só possivel a partir da espessura de paredes de 58 mm ou maior
OPCIONAL PREÇO À PARTE LICENCIAMENTO (Arquitecto)
A casa de madeira modelo Simona da MF Casas de Madeira é a materialização do sonho de uma casa moderna, espaçosa e energeticamente eficiente. Com seus 50m² de área útil , a Simona XL oferece um ambiente familiar acolhedor e versátil, ideal para quem aprecia o conforto e a liberdade de movimentos.
O kit de isolamento da casa inclui telas de isolamento, 100mm de EPS no interior e revestimento de madeira pinho nórdico certificado, proporcionando um ambiente térmico e acústico ideal para o seu lar.
Design Moderno e Acolhedor:
A Simona apresenta um design moderno e acolhedor, com linhas limpas e uma paleta de cores neutras que transmitem paz e serenidade. A sala de estar e jantar em open space é perfeita para reunir a família e amigos, facilita o dia a dia.
Qualidade e Sustentabilidade Inigualáveis:
A MF Casas de Madeira prima pela qualidade e sustentabilidade em todas as suas construções, e a Simona não é exceção. A casa é construída com madeira maciça de pinho nórdico certificado, um material de alta resistência e durabilidade, proveniente de florestas geridas de forma responsável. O isolamento térmico e acústico de 3 camadas com manta em lã de rocha do telhado garante um ambiente confortável e silencioso durante todo o ano, contribuindo para a eficiência energética da casa.
Eficiência Energética e Economia:
A Simona XL foi concebida para ser energeticamente eficiente. A espessura da madeira de 58mm, aliada ao isolamento térmico de 3 camadas com manta em lã de rocha do telhado, garante que a casa se mantenha fresca no verão e quente no inverno, reduzindo significativamente o consumo de energia e, consequentemente, as suas faturas de energia.
Personalização e Adaptabilidade:
A MF Casas de Madeira oferece a possibilidade de personalizar a casa Simona de acordo com as suas necessidades e orçamento. Você pode escolher entre diferentes, acabamentos e extras, bem como alterar a casa ou colocar painéis solares, para criar um lar único que reflita o seu estilo pessoal.
Conclusão:
A casa de madeira modelo Simona da MF Casas de Madeira é a escolha ideal para quem procura um lar moderno, espaçoso, eficiente e sustentável. Uma casa que proporciona conforto, qualidade de vida, economia e um estilo de vida em harmonia com a natureza.
Se tem um projeto em mente, ou apenas a ideia de fazer uma casa de madeira, não deixe de consultar-nos para que a nossa equipa possa demonstrar-lhe todas as vantagens e benefícios do nosso sistema construtivo.
A vasta experiência e “know-how” adquiridos com o passar dos anos, tanto a nível nacional como internacional, permite-nos encarar qualquer tipo de projecto.
Pode colocar a sua casa de madeira sob uma laje de betão, ou outro tipo de fundação. (por conta do cliente) Isto acontece por uma questão de gosto pessoal ou por necessidade, em casos de terrenos instáveis, inclinados ou em casos de exigência técnica no licenciamento.
É possível personalizar a casa, desde alterações ao tamanho e forma bem como a localização de janelas, portas ou sacadas, pode também aumentar a área útil ou usar como ponto de partida para um modelo completamente seu. À sua medida.
A espessura das paredes, pode variar entre 45 mm, 58 mm, 70 mm, 94mm ou 180 mm em parede simples e é definida, em função do tamanho e complexidade de cada modelo.
No entanto, se desejar, pode optar e solicitar uma espessura superior à que foi apresentada na sua casa. E/ou optar por colocar parede dupla com isolamento sendo que a espessura total das paredes irá subir exponencialmente. O nosso kit de isolamento (sujeito a revisão orçamental) que é composto por espessura extra de madeira maçica aplicado do lado de fora da casa com 10 cm de caixa de ar com isolamento no interior (poliestireno extrudido de paredes e chão e tela isolante). Excelente comportamento térmico, acústico e estrutural, bem como uma grande robustez resultante do sistema construtivo.
Prolongue a sua casa para o exterior, acrescente área de alpendre e de deck se assim o desejar. (sujeito a revisão orçamental)
Características:
Tipo de madeira estrutura/paredes – Pinho Nórdico maciço certificado
WC equipado, instalação eléctrica e rede de águas quente e fria e esgotos em toda a casa, pronta a utilizar.
Elevação do solo apenas 40cm.
O processo construtivo é baseado no encaixe “macho-fêmea” para construção das paredes duplas ou simples. Neste procedimento temos um encaixe perfeito entre as peças o que permite a completa vedação das paredes proporcionando maior conforto e segurança.
